Leave a Message

Thank you for your message. We will be in touch with you shortly.

Explore Our Properties

Property Description

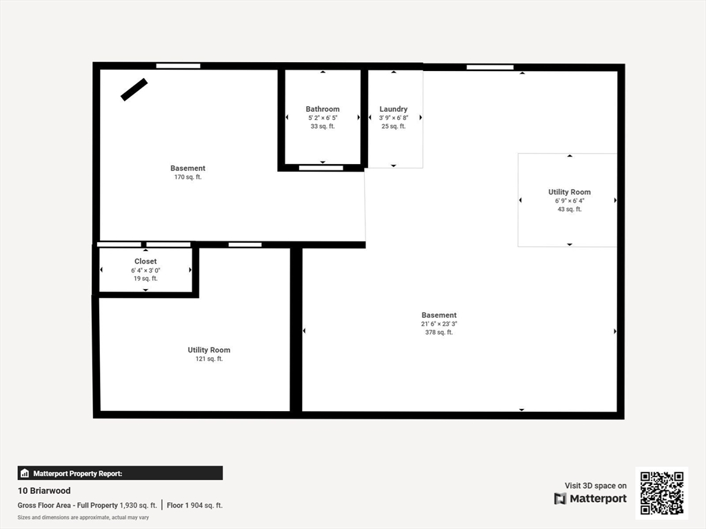
Charming ranch on a gorgeous 15,000+ square foot lot surrounded by Japanese maple trees. Lovingly configured by its original owner as an efficient two bedroom, one bathroom home. Corner bedrooms have windows on two sides, with a beautiful line of sight to the vibrant green yard. The lower level already has full-sized windows and tall, nine-foot tall ceilings ! So the house can be easily modified into a three bedroom, two bathroom by building out the lower level. A well maintained home with newer Harvey windows & slider, as well as a newer furnace. Other options are (a) adding a large one-bedroom in-law space downstairs or (b) building up for a much larger house. Highlights include walk-out access off the kitchen, a large attic for storage. Another walk-out on the lower level leads you easily to the backyard, which overlooks birch trees and a stream. An ideal setting for peaceful living.

Overview

Property Status
Sold
Lot Size
0.36 Acres
MLS ID
73379495
Property Type
Residential
Year Built
1980

Features & Amenities

Total Area
864 Sq.Ft.
Architecture Styles
Raised Ranch
Water Frontage
Stream
View Description
Scenic View(s)
Water Source
Public
Roof
Shingle
Lot Features
Gentle Sloping
Parking
Off Street
Heat Type
Forced Air, Oil
Air Conditioning
Window Unit(s)
Other Interior Features
Great Room
Sewer
Public Sewer
Substructure
Concrete Perimeter
Sales Price
$625,000
Real Estate Tax
$5,879/yr
Zoning
R-1

Downloads

10 Briarwood Rd

Schedule a Tour

We would love to help you see this beautiful home! As a full-service brokerage, we can help you tour. Please submit an offer, and answer questions about the buying process.

Enter a valid email

Thank you

for your interest in 10 Briarwood Rd, Woburn, MA 01801

back to page
10 Briarwood Rd
Navigate

I'm Interested In

10 Briarwood Rd

or
  • CallMichael Davis

    License #9037743

    (617) 233-4485
  • Browse Our

    FEATURED PROPERTIES

    • 8 Teresa Circle Pending

      $1,499,000

      8 Teresa Circle, Arlington, MA 02474

      • 6 Beds
      • 3 Baths
      • 2,900 Sq.Ft.
    • 147 Langdon Ave # 149 Pending

      $669,900

      147 Langdon Ave # 149, Watertown, MA 02472

      • 2 Beds
      • 1 Bath
      • 1,368 Sq.Ft.
    • 180 Telford Street # 9 Unit: 5-9 For Sale

      $598,000

      180 Telford Street # 9 Unit: 5-9, Boston, MA 02135

      • 1 Bed
      • 1 Bath
      • 738 Sq.Ft.
    • 147 Langdon Ave # 147, Watertown Unit: 147 For Sale

      $569,000

      147 Langdon Ave # 147, Watertown, MA 02472

      • 2 Beds
      • 1 Bath
      • 940 Sq.Ft.
    • 114 Crickett Rd Pending

      $540,000

      114 Crickett Rd, Brockton, MA 02301

      • 3 Beds
      • 2 Baths
      • 2,073 Sq.Ft.
    • 210 South Street # 4 Unit: 10-4 For Lease

      $4,000/mo

      210 South Street # 4 Unit: 10-4, Boston, MA 02111

      • 1 Bed
      • 2 Baths
      • 1,386 Sq.Ft.
    • 79 Brighton Ave # 2 For Lease

      $3,800/mo

      79 Brighton Ave # 2, Boston, MA 02134

      • 3 Beds
      • 2 Baths
      • 1,120 Sq.Ft.
    • 4 Dawes Street # 2 For Lease

      $2,750/mo

      4 Dawes Street # 2, Boston, MA 02125

      • 3 Beds
      • 1 Bath
      • 1,350 Sq.Ft.
    • 9 Hawthorne Place # 11B For Lease

      $2,650/mo

      9 Hawthorne Place # 11B, Boston, MA 02114

      • 1 Bed
      • 1 Bath
      • 628 Sq.Ft.
    • 6 Brandon # 2 For Lease

      $1,950/mo

      6 Brandon # 2, Dudley, MA 01571

      • 3 Beds
      • 1 Bath
      • 1,100 Sq.Ft.
    View All

    Follow Us On Instagram