Leave a Message

By providing your contact information to Prime Realty, your personal information will be processed in accordance with Prime Realty's Privacy Policy. By checking the box(es) below, you consent to receive communications regarding your real estate inquiries and related marketing and promotional updates in the manner selected by you. For SMS text messages, message frequency varies. Message and data rates may apply. You may opt out of receiving further communications from Prime Realty at any time. To opt out of receiving SMS text messages, reply STOP to unsubscribe.

Thank you for your message. We will be in touch with you shortly.

Explore Our Properties

Property Description

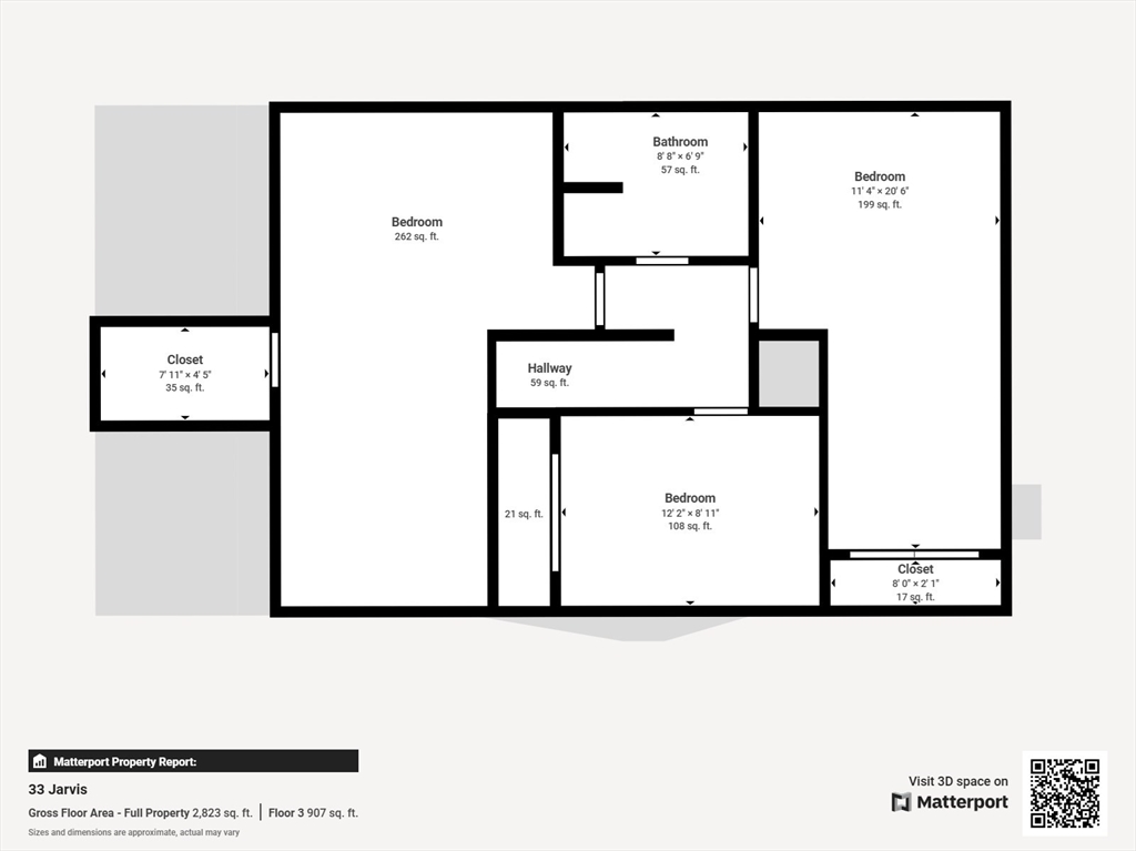
Welcome to this beautifully renovated, very spacious cape style home, located on a quiet street just few minutes from Route 1. Relaxing foyer entrance greets you as you enter the home. You will fall in love with beautiful, wide-plank Oak Flooring, the open concept living room and dining room area and modern kitchen w/ built ins, farmhouse sink, granite counters, SS appliances, a walk in pantry and full bathroom complete the main floor. The second floor offers a large master bedroom w/walk in closet. 2 ample sized bedrooms with double door closets, second floor laundry, a full bathroom to die for. The home features on demand tankless hot water, recess lighting, central air, fully insulated, newer roof and window. 3-4 car driveway, a fence in back yard with a band new deck and a stone patio. Conveniently located w/easy access to highway, public transportation, minutes from the T-Blue line. Video: https://youtu.be/CbpAiWWIjVM

Overview

Property Status
Pending
Lot Size
3,999 Sq.Ft.
MLS ID
73492959
Property Type
Residential
Year Built
1911

Features & Amenities

Total Area
1,782 Sq.Ft.
Architecture Styles
Cape
Water Frontage
1 to 2 Mile To Beach
Water Source
Public
Parking
Paved Drive, Off Street
Heat Type
Central, Forced Air, Natural Gas
Air Conditioning
Central Air
Appliances
Gas Water Heater, Tankless Water Heater
Sewer
Public Sewer
Substructure
Stone
Sales Price
$765,000
Real Estate Tax
$6,088/yr
Zoning
RB

Downloads

33 Jarvis

Schedule a Tour

We would love to help you see this beautiful home! As a full-service brokerage, we can help you tour. Please submit an offer, and answer questions about the buying process.

Thank you

for your interest in 33 Jarvis, Revere, MA 02151

33 Jarvis
Navigate

Mortgage Calculator

Estimate your monthly mortgage payment, including the principal and interest, property taxes, and HOA. Adjust the values to generate a more accurate rate.
$0,000 Your Payment 20 15 65
$0,000 Your Payment

I'm Interested In

33 Jarvis

or
  • CallJacek Rosa

    License #9513360

    (617) 259-7812
  • Browse Our

    FEATURED PROPERTIES

    • 225 Dorchester St # 15 For Sale

      $1,185,000

      225 Dorchester St # 15, Boston, MA 02127

      • 2 Beds
      • 3 Baths
      • 1,534 Sq.Ft.
    • 33 Jarvis Pending

      $765,000

      33 Jarvis, Revere, MA 02151

      • 3 Beds
      • 2 Baths
      • 1,782 Sq.Ft.
    • 180 Telford Street # 509 For Sale

      $590,000

      180 Telford Street # 509, Boston, MA 02135

      • 2 Beds
      • 1 Bath
      • 738 Sq.Ft.
    • 210 South Street # 4 Unit: 3-4 For Lease

      $5,200/mo

      210 South Street # 4 Unit: 3-4, Boston, MA 02111

      • 2 Beds
      • 2 Baths
      • 1,728 Sq.Ft.
    • 157 Langdon Ave # 157 For Lease

      $4,500/mo

      157 Langdon Ave # 157, Watertown, MA 02472

      • 3 Beds
      • 2 Baths
      • 1,860 Sq.Ft.
    View All

    Follow Us On Instagram